History
Henry Wise built this round barn sometime after he and his family arrived in the area in 1912. The family moved from Delphi, Indiana, USA by train, arriving in Killam, AB. They made the 30-mile trek from Killam to this quarter with supplies, including Mrs. Wise’s piano.
Henry built the large round barn to house his Red Poll cattle. The barn had a well inside which meant that the cattle, housed on the ground floor, always had water. The loft of the barn stored loose hay for feed and bedding. The barn was extremely unique because it was round and built into a hill. Due to this, a team of draft horses, pulling a rack of hay, could drive right into the loft of the barn. After the hay got unloaded, the team could circle easily inside the loft and then exit the barn. Bins for grain and chop were also in the loft of the barn. Straw was often threshed directly from the loft into the mow for bedding.
This barn no longer stands. It was set on fire and burnt down in the 1990s. Grant Jackson provided these photos and the plans for the barn. He collected the following photos because he thought that the barn was incredibly unique and deserved to be documented for future generations.
The property the barn used to sit on was owned by the Perreault family sometime after the Wise family. However, the property is now owned by Tommy and Sarah Voros. The Voros family intends to raise their cattle, sheep, and children around the ruins of the old round barn.
Jackson, Grant. Personal communication. 15 May 2017.
Voros, Sarah. Personal Communication. 15 May 2017.

View of the barn from the west taken at a point longer ago than the rest of the images.

The barn was in a state of disrepair before it burnt down.

The wooden shiplap siding was curved to cover the barn’s exterior.

The conical roof has a single cupola.

View of the barn from the north-west.

The round barn had many windows and three entrances. The one to the loft is pictured here. The door faces to the north.

This photo shows aspects of the main barn, the attached room, and the post that supports the beam that the loft doors slide on.


The cupola was hexagonal.

There was a large door to access the ground floor on the south side of the barn.

The stone foundation for the barn was is poor condition before the barn burnt down.

This frame shows the western door on the ground floor.

The beam and post supporting the western door are visible in the left corner of this frame. The south door is just visible in the right portion of this frame.


The round barn was featured on a paper handout promoting heritage preservation. It was prepared by the Historic Sites Committee of the County of Flagstaff.

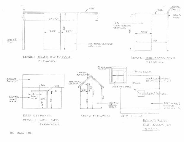
The plans for the barn.





View from the South of what the barn looks like today.

This frame shows the barn from the West.

This frame shows the cement foundation for the building which used to be on the north-western side of the barn.

This frame shows the southern side of the barn

This frame shows the south-eastern side of the barn.

The walls were poured using slip forms. Additionally, you can see how the large rocks were pushed to the outsides of the walls so that they could be seen from the outside.

This frame shows the inside of the south-eastern wall.

These holes used to have wooden beams in them. The beams would have been burnt away when the barn was burned down.
Location
52.461967, -111.907767 NE 23-40-14 W4
Characteristics
Barn Condition: Destroyed but foundation still visible.
Construction Date: After 1912 but before 1920
Features: Single cupola, shed addition, build into hill, round
Roof Shape: Conical
Paint: None
Decorations: No names or dates
Roof Covering: Cedar shakes
Siding: Curved wooden shiplap
Foundation: Field stone and cement
Additional History on the Property
“The Henry Wise Family”. Golden Echoes: A History of Galahad and District. 1st ed. Galahad: Galahad Historical Society, 1980. Print.
One thought on “Wise/Perreault/Voros”